35 West 15th Street

2024
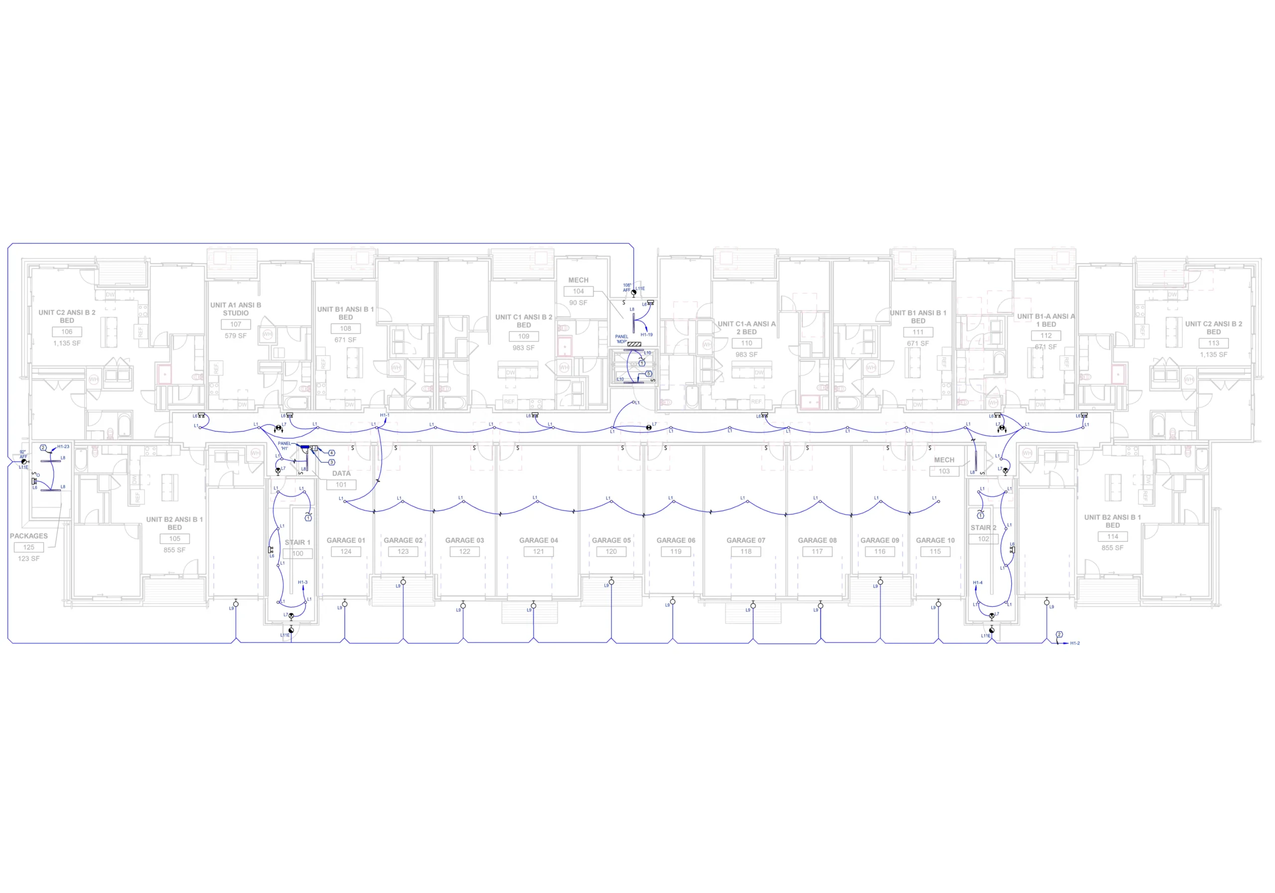
A high-rise residential development in New York, this 170,000 SF tower received BIM modeling and documentation support from SPA during design and construction documentation stages.

Location

New York, USA

Category

Residential

Status

Completed

Discipline

Architecture

Area of Work

170,000 SF

PROJECTS

Similar Projects