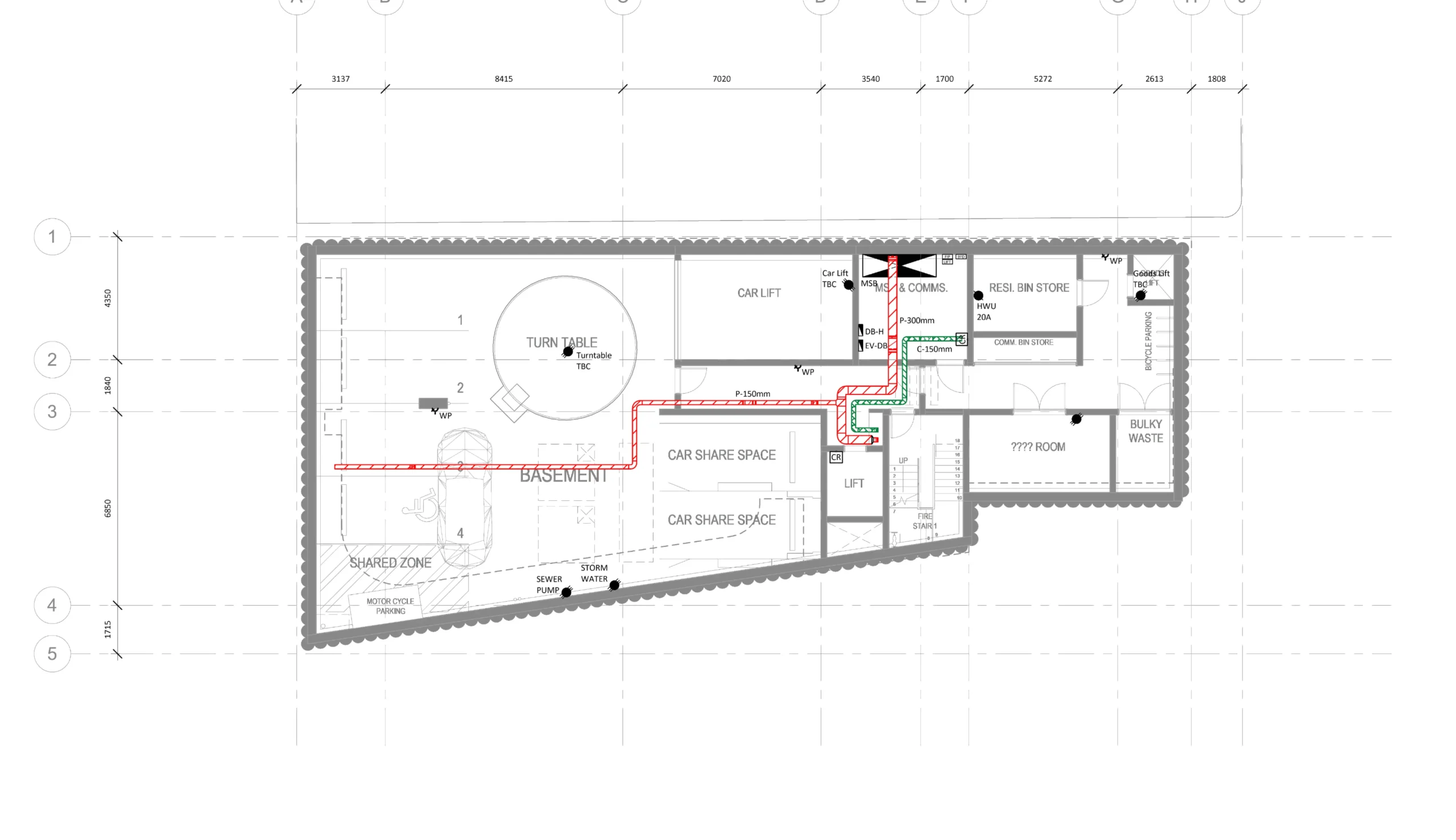
A residential development located in the coastal suburb of Cronulla spans over 30,000 SF. SPA provided specialized BIM support for Mechanical, Electrical, and Plumbing (MEP) systems throughout the construction documentation phase. This included detailed modeling, coordination, and documentation to ensure seamless integration of building services and enhance construction efficiency.